Refine Search
$373,900

6276 Hornbuckle Boulevard North Port, FL 34291 Residential - Single Family Active

  • 6276 Hornbuckle Boulevard , North Port, FL 34291 Main Photo

2 Total Photos [Click to View All]

Description

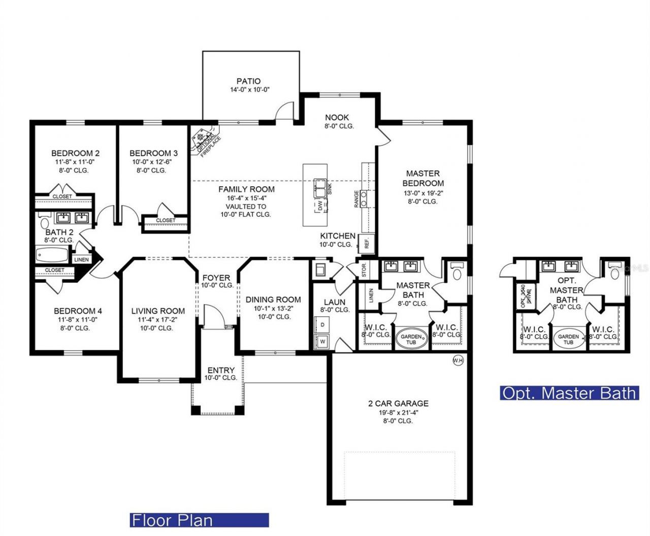
Under Construction. Under Construction. Welcome to this magnificent under construction home- 3 bedrooms and a den/study/4th bedroom, two baths, a formal living room and dining room in addition to spacious family room, and large, inside laundry. Nestled in a vibrant North Port area, this home provides ample room for you, your family, and your guests to enjoy. Split bedrooms and wide-open floor plan with a large kitchen counter overlooking the family room with vaulted ceilings give this house an airy feel, creating a sense of grandeur in the living area, and allowing the natural light to make the space feel even larger and more inviting. Ceramic plank tile flooring throughout except in the bedrooms, designer LED recessed lighting, 36' upper cabinets with crown molding, quartz countertops in the kitchen and baths, stainless steel appliances, double pane insulated tilt-in sash windows for energy efficiency. This property also comes with a 10-year structural warranty for peace of mind. Only $1000 down to secure this home today!

Property Highlights

Property Type: Residential - Single Family
Cooling: Central Air
Garage: 2 car attached
Heating: Central, Electric
Lot Size: 0.23 Acres
Roof Type: Shingle
Stories: 1.0
Taxes: $711
Year Built: 2026

General Information

Bedrooms: 4
Bathrooms: 2 Full
Sqft: 2,240
County: Sarasota
High School: North Port High
Subdivision: PORT CHARLOTTE
Listed By:
Teri Barbee ADAMS HOME REALTY INC 941-480-9800

Amenities

Crown Molding
Eat-in Kitchen
In Wall Pest System
Kitchen/Family Room Combo
Open Floorplan
Pest Guard System
Primary Bedroom Main Floor
Solid Wood Cabinets
Split Bedroom
Stone Counters
Thermostat
Vaulted Ceiling(s)
Walk-In Closet(s)
Hurricane Shutters
Sidewalk
Sliding Doors

Room Information

Primary Bedroom: 13x9
Bedroom 2: 11x11
Bedroom 3: 10x12
Bedroom 4: 11x11
Living Room: 11x17
Dining Room: 10x13
Family Room: 16x15
Balcony/Porch/Lanai: 14x10

Property Features

Additional Rooms: Formal Dining Room Separate, Formal Living Room Separate
Appliances: Dishwasher, Electric Water Heater, Microwave, Range
Builder: Adams Homes of Northeast FL
Directions: 2719 W Price Blvd., turn left out of parking lot onto W Price Blvd., turn right onto N Biscayne Dr, then turn right onto Ponce de Leon Blvd, continue 1.4 miles then turn right onto Hornbuckle Blvd, #6276.
Disaster Mitigation: Above Flood Plain, Hurricane Shutters/Windows
Exterior: Block, Stucco
Flood Zone Code: X
Flooring: Carpet, Ceramic Tile
Foundation: Slab
Garage Dimensions: 19x21
Home Warranty Y/N: Yes
Listing Terms: Cash, Conventional, FHA, VA Loan
Lot: Cleared, FloodZone, City Limits, Landscaped, Level, Oversized Lot, Sidewalk, Paved
Lot Dimensions: 0.23
Model: 2240 A
Number of Septics: 1
Number of Wells: 1
Ownership: Fee Simple
Parking: Driveway
Parking Notes: Driveway
Patio/Porch: Patio
Pets Allowed: Cats OK, Dogs OK, Yes
Property Attached Y/N: No
Property Sub-Type: Single Family Residence
Sewer: Septic Tank
Showing Instructions: Appointment Only, Call Before Showing, Call Listing Agent, See Remarks
Special Sale Provisions: None
Utilities: Cable Available, Electricity Available, Sewer Connected, Water Connected
Water: Private, Well
Water Access Y/N: No
Windows: Double Pane Windows, Insulated Windows
Zoning: RSF2
$373,900
4beds
2.0baths
2,240sqft
2cars
New to the Market Active
BEDS4 BATHS2 full SQUARE FEET2,240 MLS#A4688070
STATUSActive PROPERTY TYPEResidential - Single Family SUBDIVISIONPORT CHARLOTTE

Get in Touch

Contact an agent to learn more about

6276 Hornbuckle Boulevard , North Port, FL 34291.

Contact Form

Preferred Communication Method:

Estimate Your Payment

Estimated Payment

$ 1,429.41 per month $1,261.10 Principal & Interest $59.25 Property Tax $109.05 Homeowner's Insurance

Change Payment Information

%
years/fixed
yearly
yearly (est.)
(Payments are an estimate and may vary by lender)

Login to My Homefinder

Pixel